Building in Campione d’Italia
- €703.000,00
Building in Campione d’Italia
- €703.000,00
Description
Four-storey building in Campione d’Italia on Lake Lugano
The building for sale is in the heart of the city, one of the first houses built in Campione d’Italia. It takes an hour drive to get to Milan and to the nearest ski resorts, and 10 minutes to Lugano.
An amazing geographical location of the Italian enclave, surrounded on all sides by Switzerland.
– on the shore of a beautiful lake Lugano
– proximity to Switzerland and Como
– high standard of living
– excellent international schools
– tax benefits for residents
The building in Campione d’Italia has been completely renovated with complete replacement of all utility systems (water, sewerage, electricity).
All rooms are equipped with air conditioning. The water is heated by a heat pump. The heating works with a heat pump as well, the eating pipes are on the floor.
The first floor is rented, the rent fee is enough to cover utilities and property tax, and allows rental income.
The house has 4 floors:
- Ground floor – an office 25 m2 with a bathroom and a storage room;
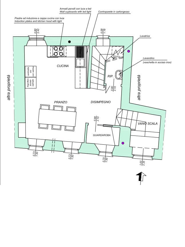
- The first floor – a kitchen, a cloakroom, a laundry room;
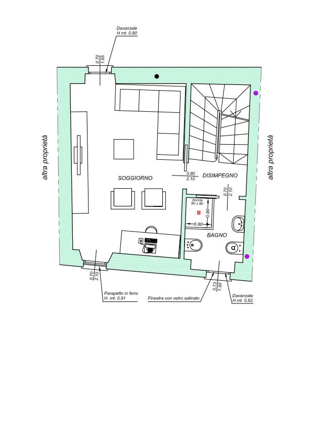
- Second floor – a living room, a bathroom with shower and bidet;
- Third floor -a bedroom room, a bathroom with shower and bidet.Major repairs have just been made. No one has lived in the house yet.
Details
Updated on March 13, 2026 at 7:32 am-
ID 0999CDI-22227
-
Price €703.000,00
-
Property Size 92 m²
-
Bedroom 1
-
Bathrooms 3
-
Type Buildings
-
Property Status Sale
Address
Open on Google Maps-
City: Campione d'Italia
-
Region: Lombardy
-
Country: Italy
